











Urban Villa, Berlin hide text
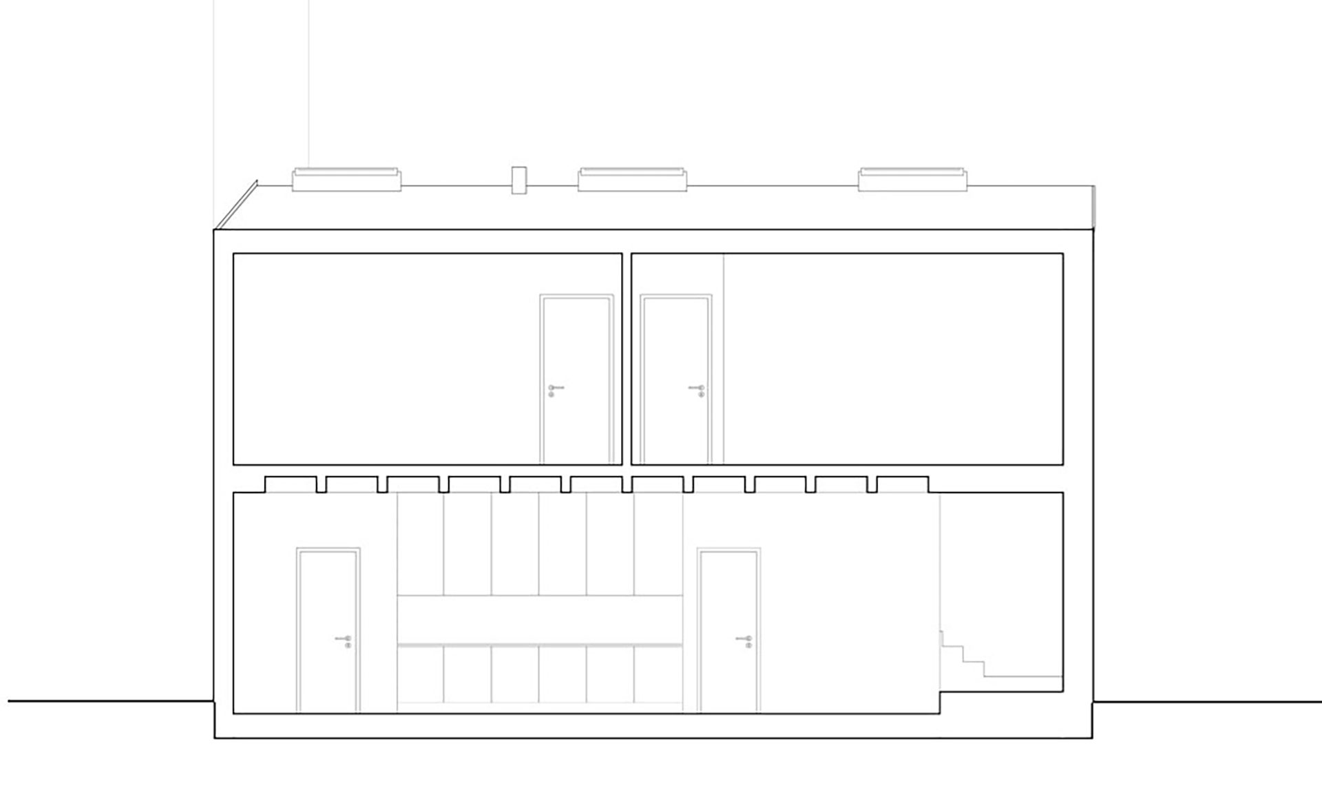
Constructed within the court of an existing apartment building in Charlottenburg, the Urban Villa is a home hidden withing the heart of the city. The structure’s facade is painted a bare white, and holds windows flush to the wall. Inside, the floor plan is open, and leaves no separation between living room and kitchen. The living room itself is set deeper into the ground, nesting the residents at home. The ceiling’s wooden beams reinforce this home-like quality, and maintain the space’s structure. Finally, the window sill is a 40cm-high space, carving out a place for rest.
Program:
Residential
Project status:
Completed
Surface:
150 ㎡
Location:
Berlin
Year:
2010-2012
Design Team:
Pilar Sanchez-Arjona
Image Credits:
Nick Ash