





















































Lindower Straße A-C, Berlin hide text
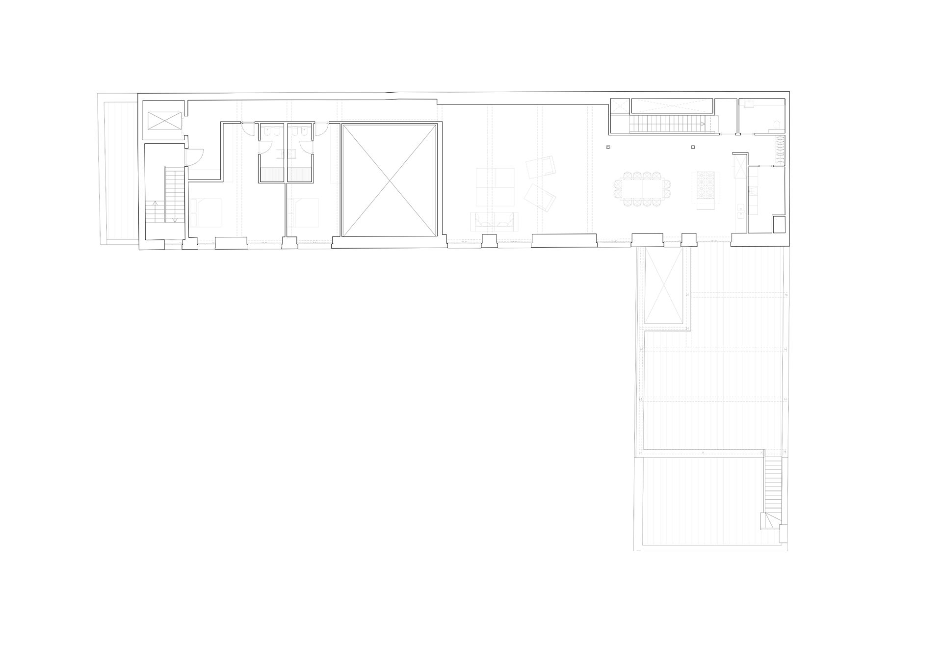
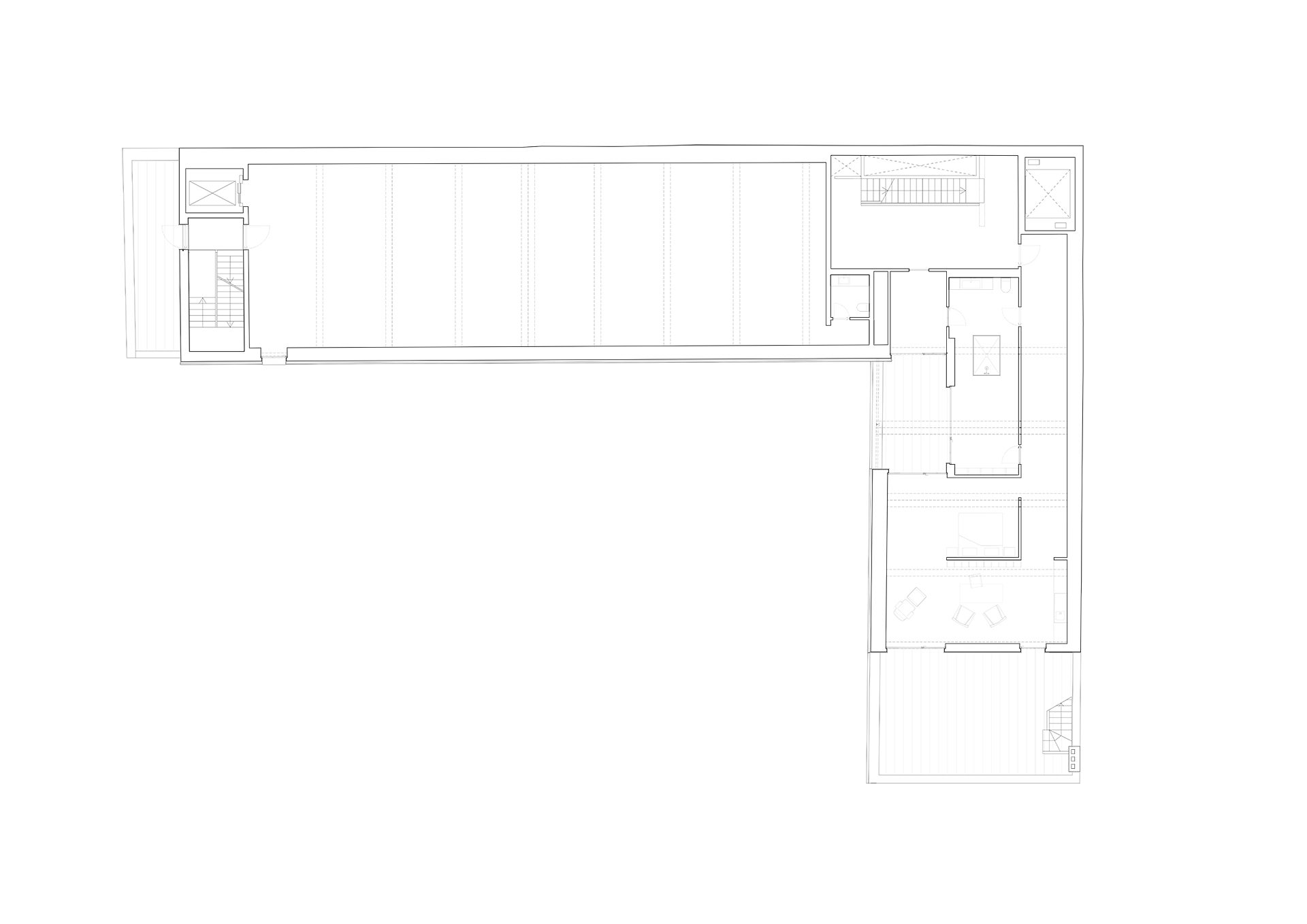
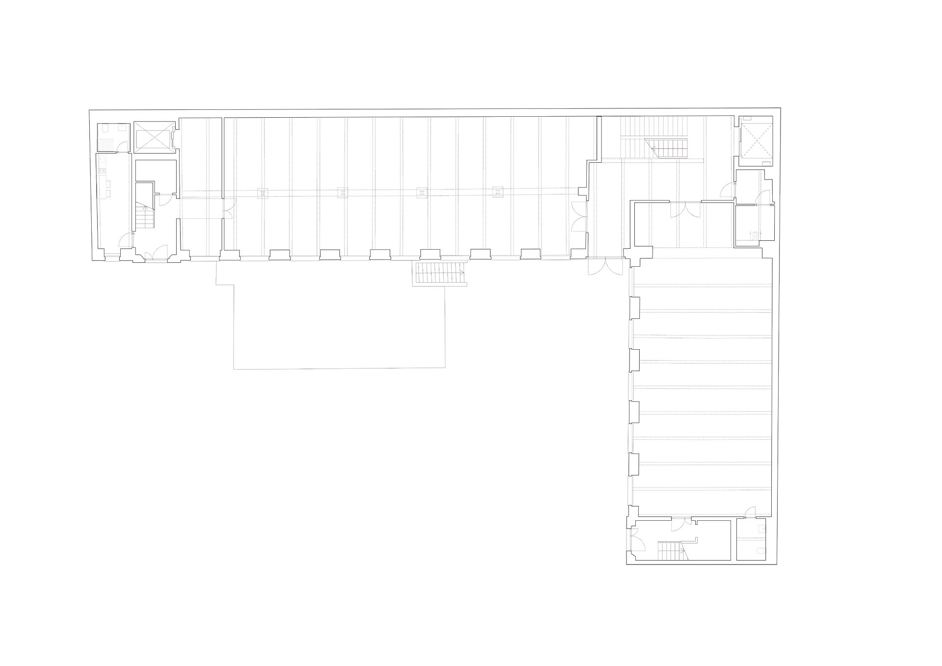
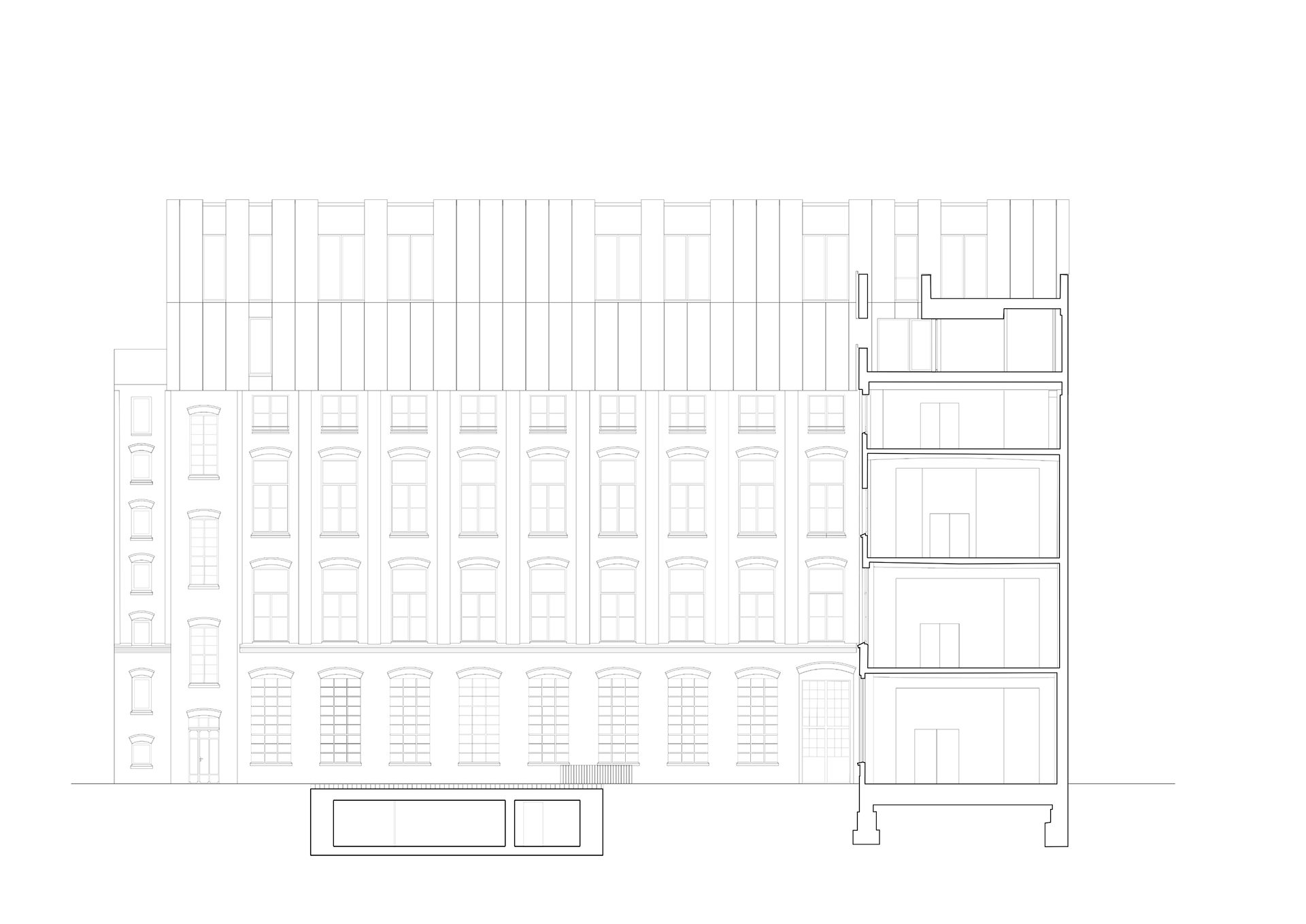
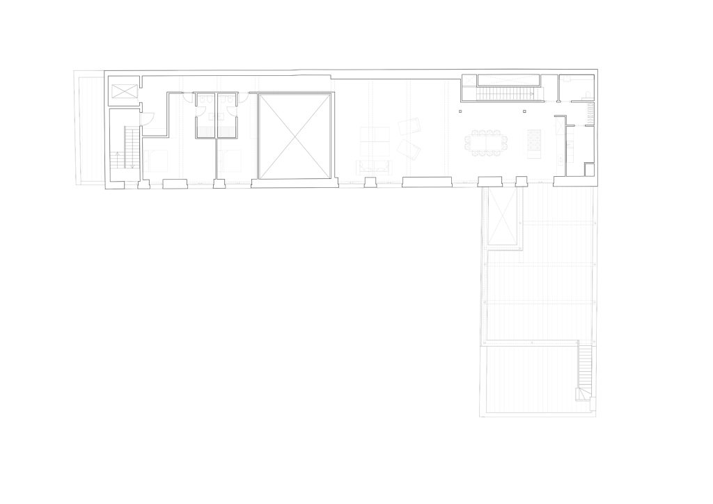
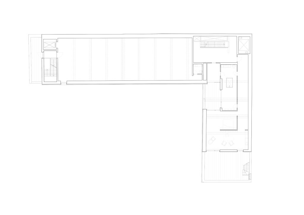
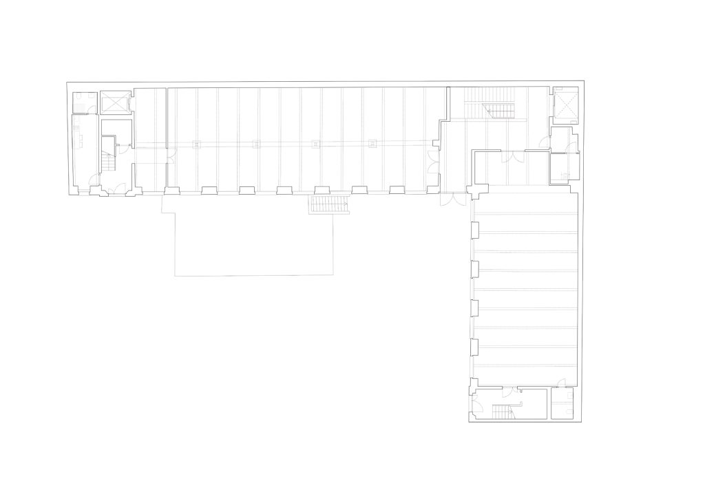
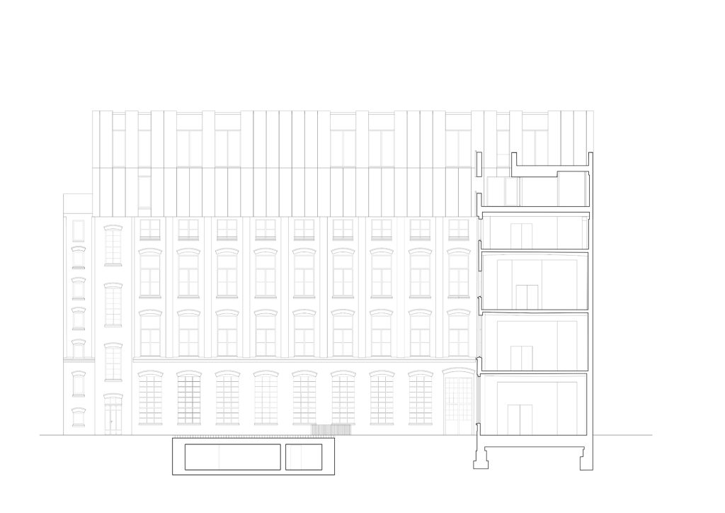
Buildings A and C mark phase 1 of a project to create a new space for art exhibitions and workshops. This was part of the extensive redevelopment of an early 20th-century deposit safe factory built on an existing industrial site in Berlin’s Wedding district. A new creative hub, featuring artist studios, apartments and exhibition spaces, is created across both buildings over 5,050 m2. The metal façade of the two-storey structure added to one of the buildings reflects the sky and also highlights the original state of the complex. Housing an exhibition hall with city views, the structure augments the site with a contemporary architectural design. The existing spaces were sparingly renovated with the marks of time left visible, thus creating an atmosphere that inspires creativity
Program:
Mixed use
Project status:
Completed
Surface:
3.900 ㎡
Location:
Lindower Straße
Berlin
Year:
2013-2017
Design Team:
Claudia Große-Hartlage
Simone Martini
Florens Riedel
Collaboration:
asastudio
Image Credits:
Francesca Ióvene