





















































































Gutshof Güldenhof, Stechlin hide text
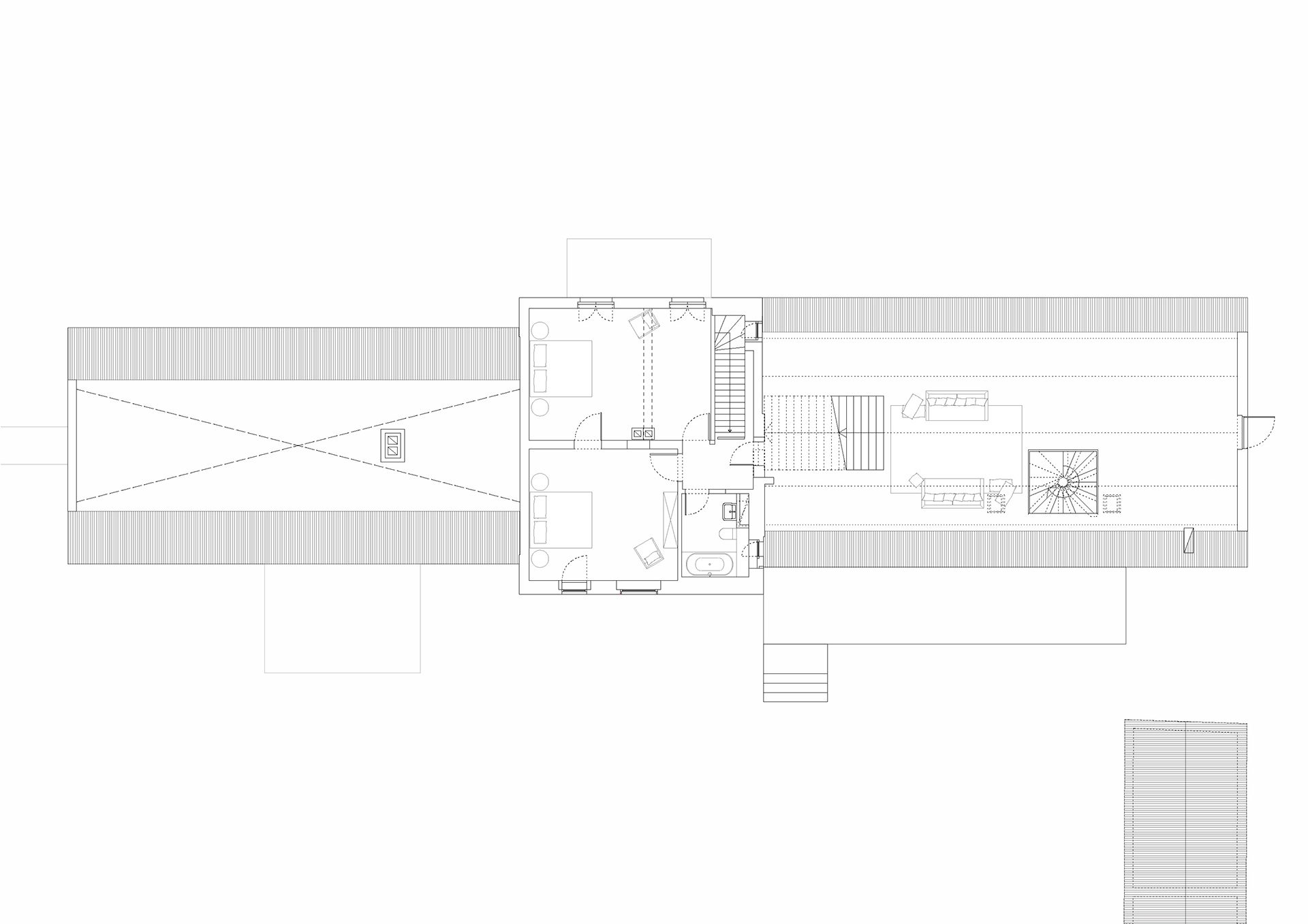
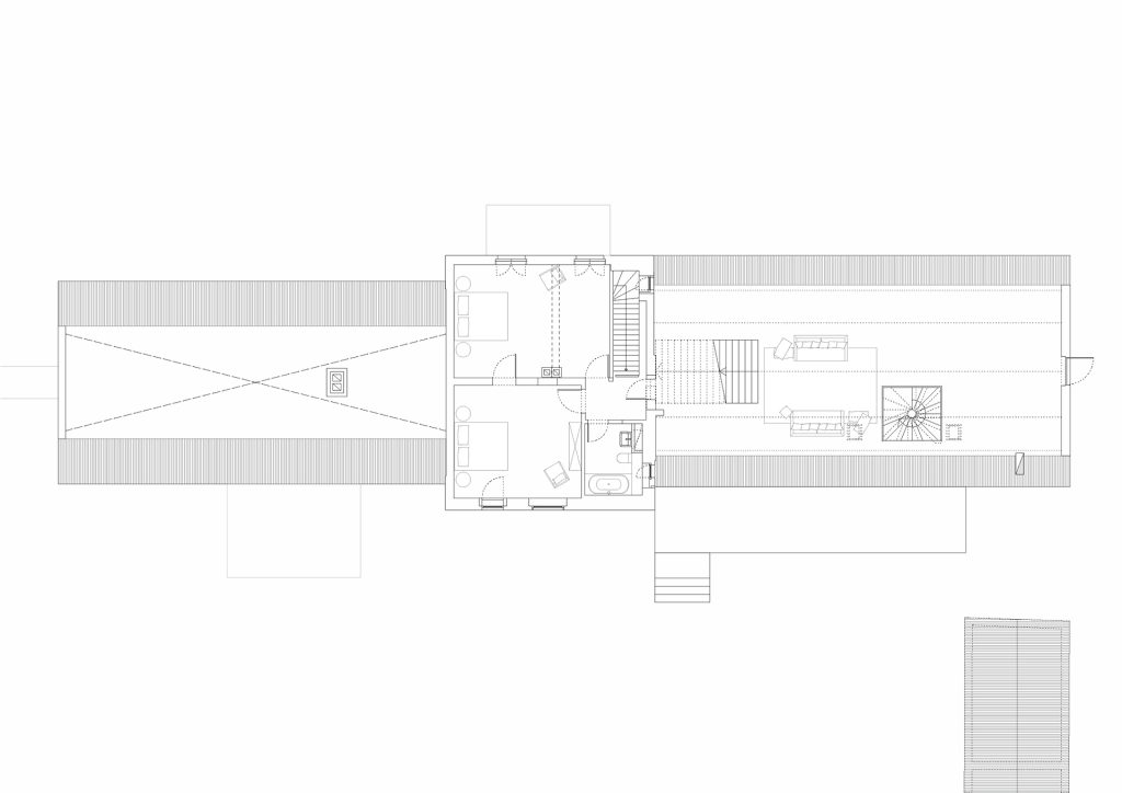
The transformation of this farming complex into a centre for art, sustainable living and social interaction was commissioned by an internationally renowned artist. A series of architectural interventions have been undertaken involving the existing barns and farmhouse, which surround a farmyard, to create exterior and interior spaces for a range of uses. The project focuses on agricultural principles to develop a sustainable, self-sufficient ecosystem (i.e. permaculture). The complex includes an art studio and exhibition spaces alongside metal, ceramic and wood workshops as well as apartments, a conservatory, communal spaces and extensive art storage.
Program:
Mixed use
Project status:
Completed
Surface:
5.000 ㎡
Location:
Stechlin
Stechlin
Year:
2017-2021
Design Team:
Simone Martini
Claudia Große-Hartlage
Michael Cradock
Federica Carletto
Karolina Modzelewska
Jacopo Spinelli
Matteo Rossi
Valentina Vianello
Cristiana Lo Sterzo
Image Credits:
Francesca Ióvene