











Eichbuschallee, Berlin hide text
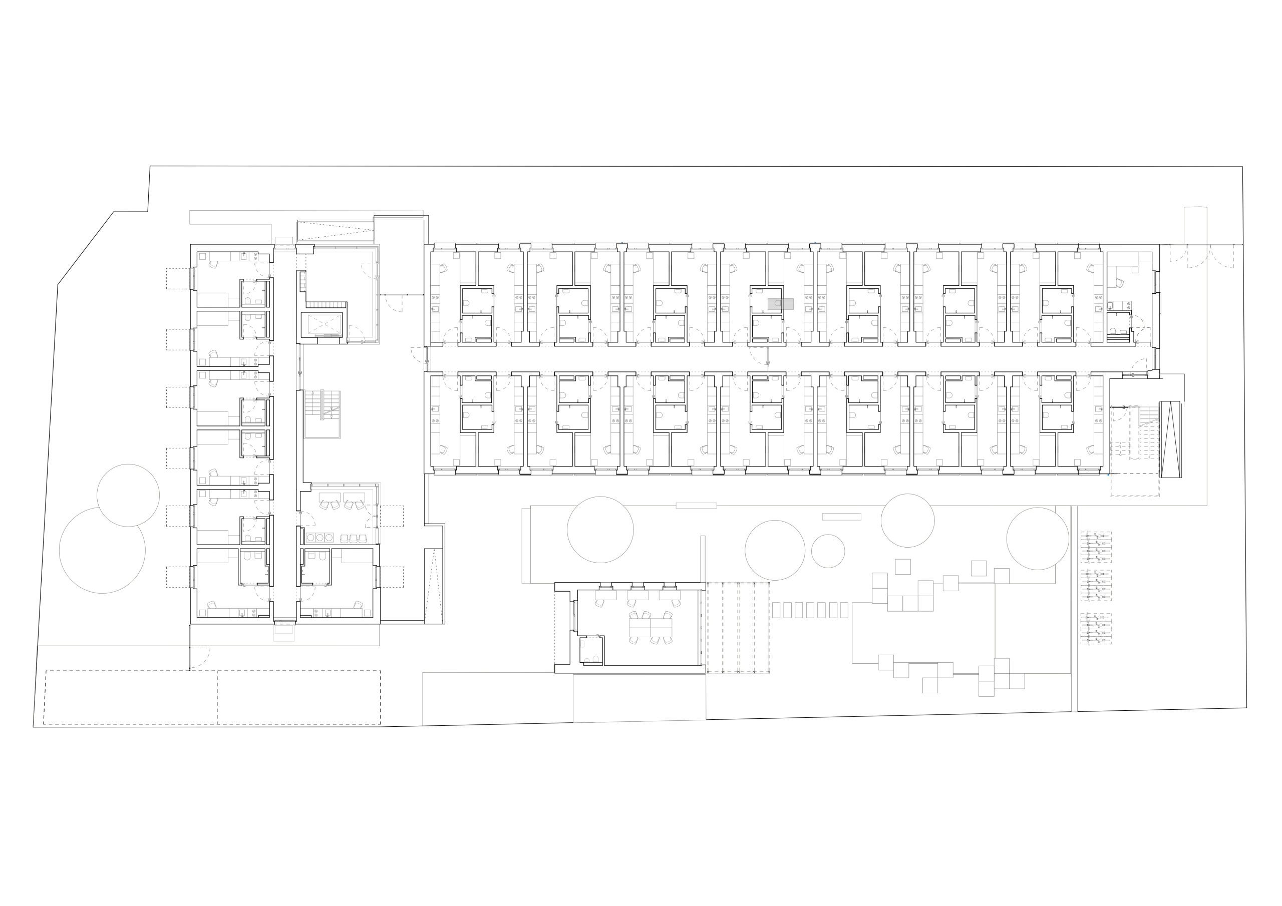
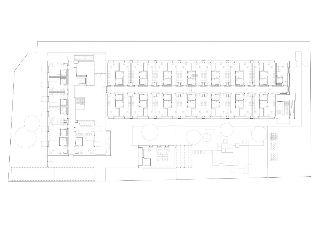
The student housing block is located in Plänterwald and consists of two separate buildings with a partial basement. The facade is clad with wooden larch panels and sliding shutters. The buildings house 150 units, a communal washing center and kitchen and share a community garden. A green area is nested between the buildings and offers a place for communication and recreation. Different spaces that invite to sit down are scattered around the complex to provide the students with spaces to learn and spend time in.
Program:
Residential
Project status:
Completed
Surface:
3.200 ㎡
Location:
Berlin
Year:
2019-2022
Design Team:
Julian Cassirer
Antonio Seghini
Irene D`Alessandro
Joseba Iztueta