






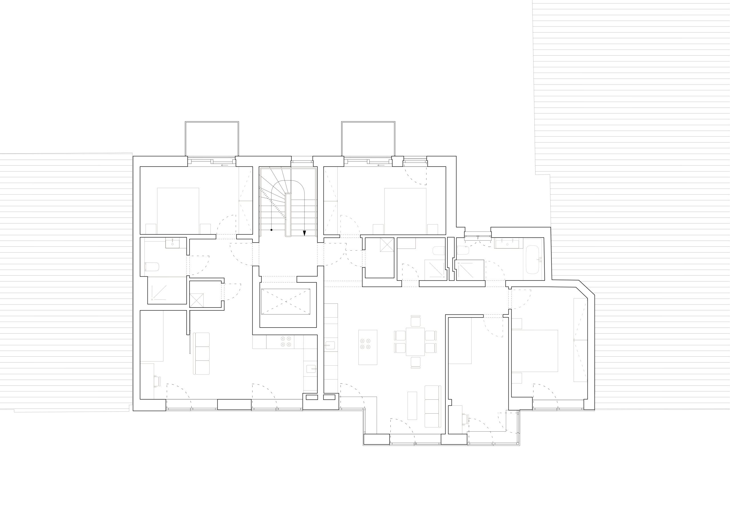
Weserstraße, Berlin hide text
Program:
Residential
Project status:
Ongoing
Location:
Weserstraße
Berlin
Year:
2022
Design Team:
Maria Vittoria Monaco
Albrecht Harder