















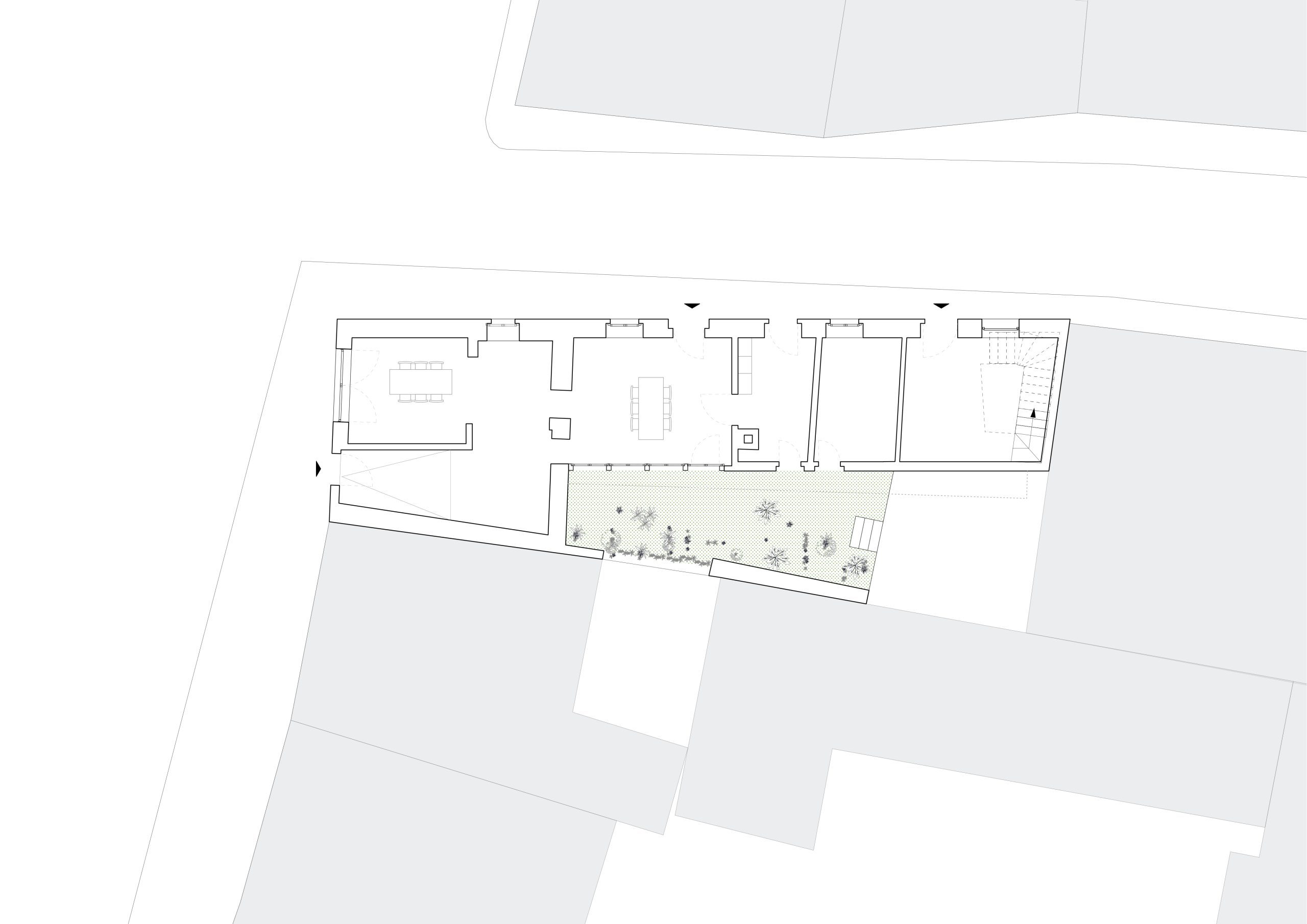
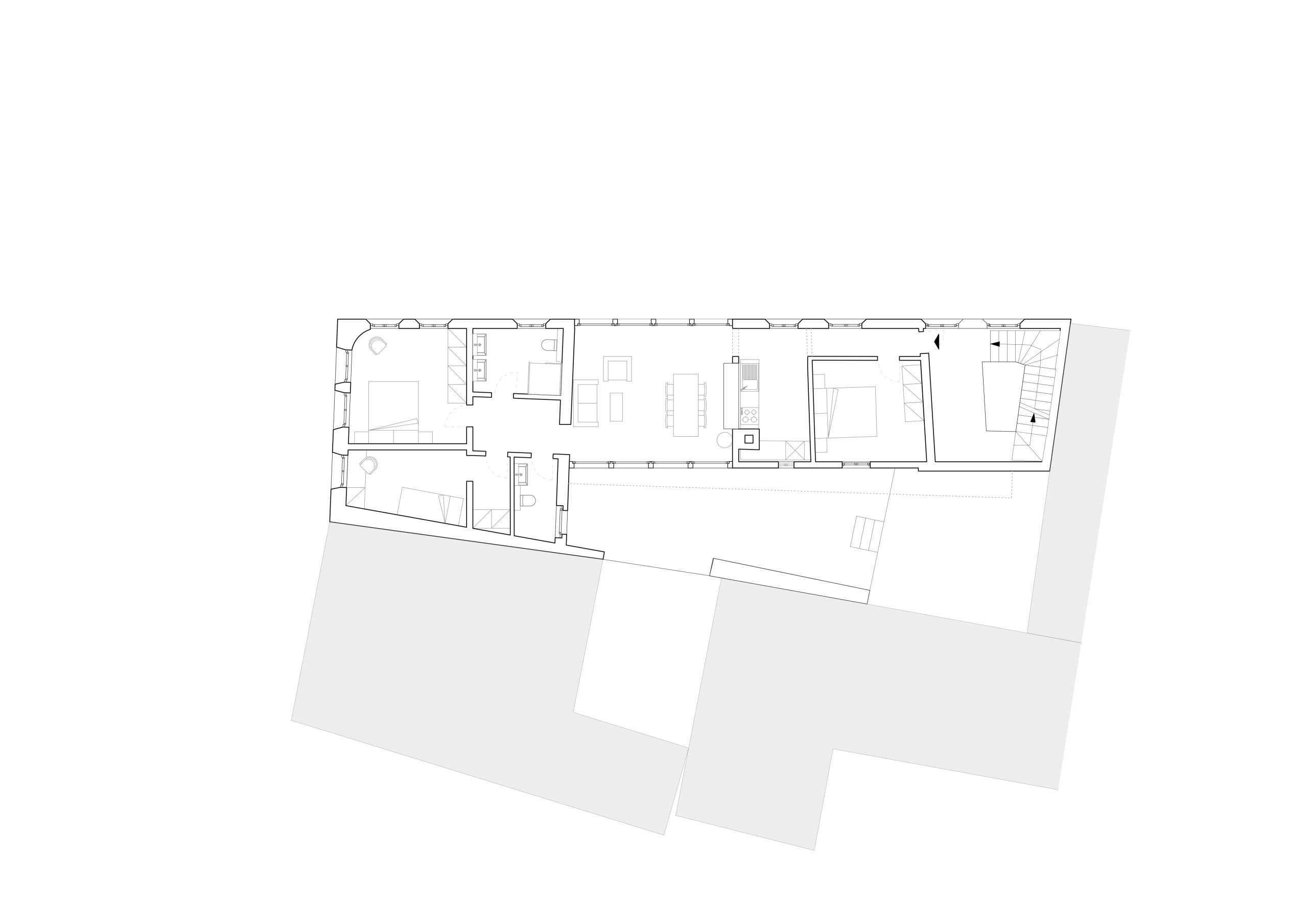
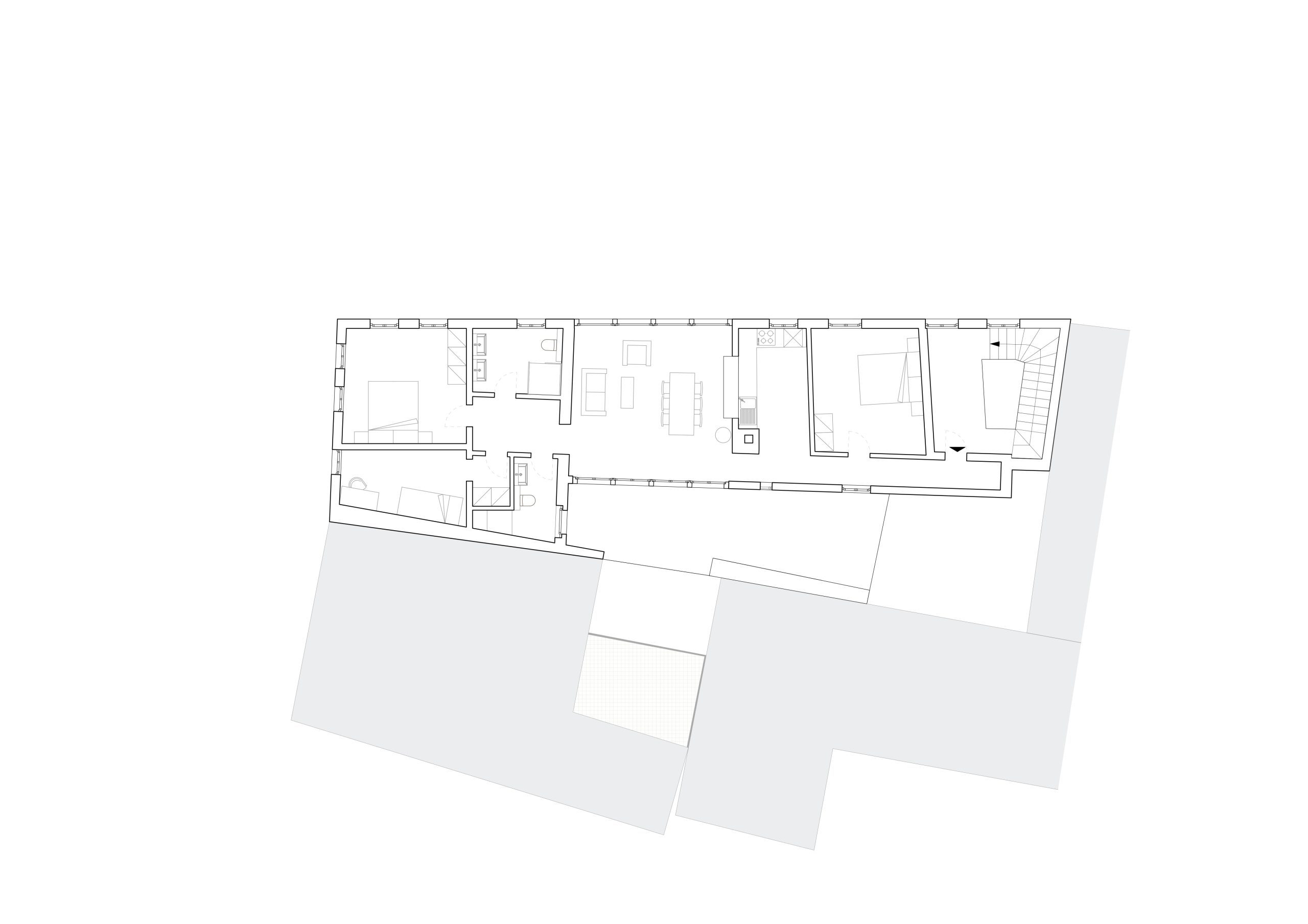
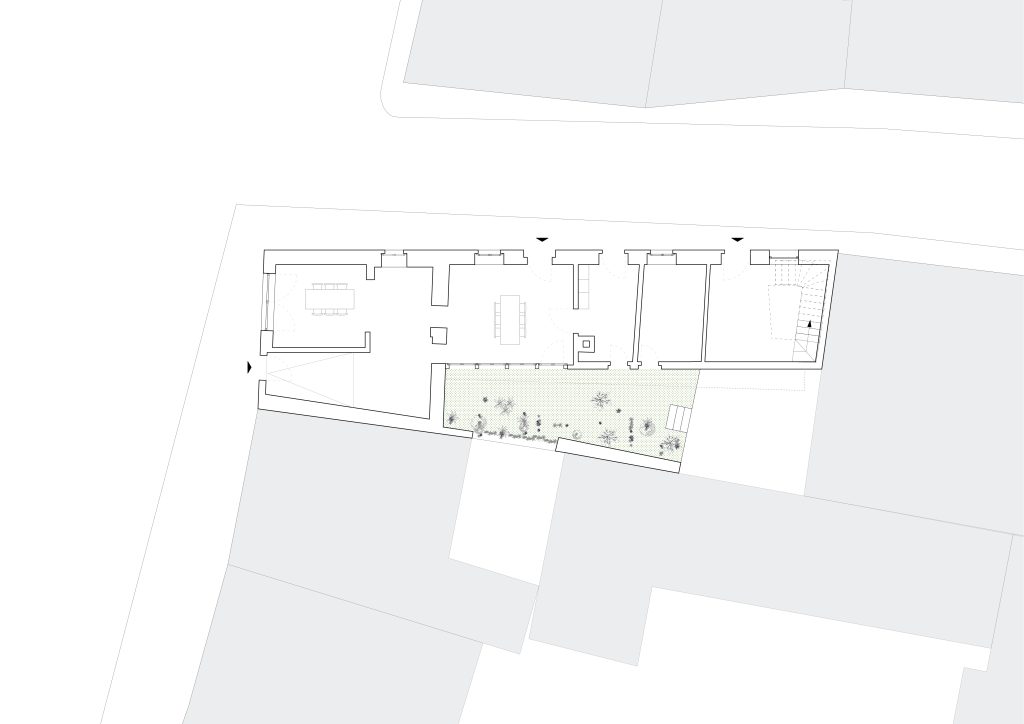
Topfmarkt, Altenburg hide text
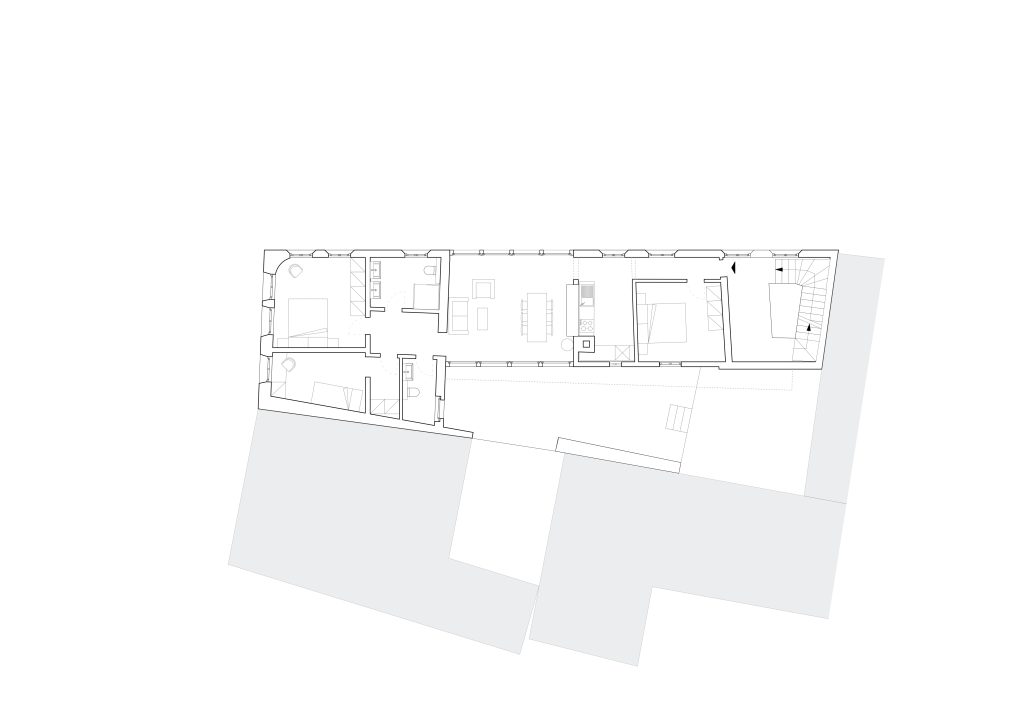
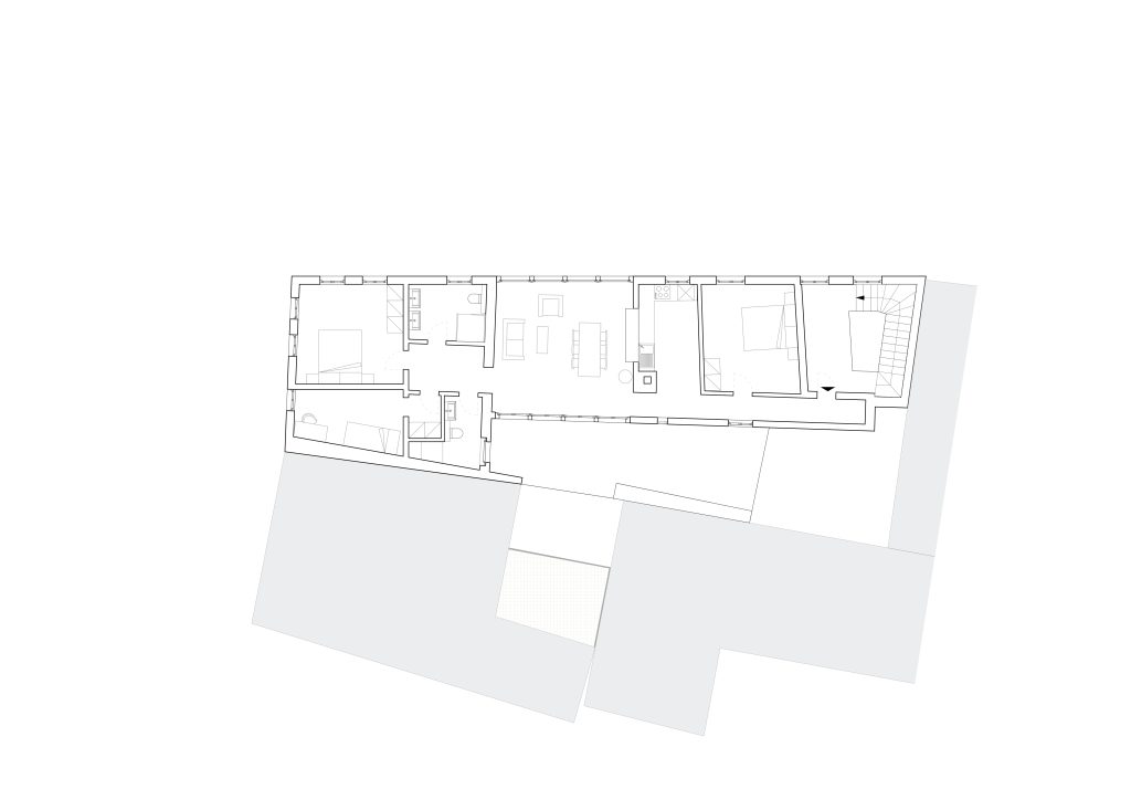
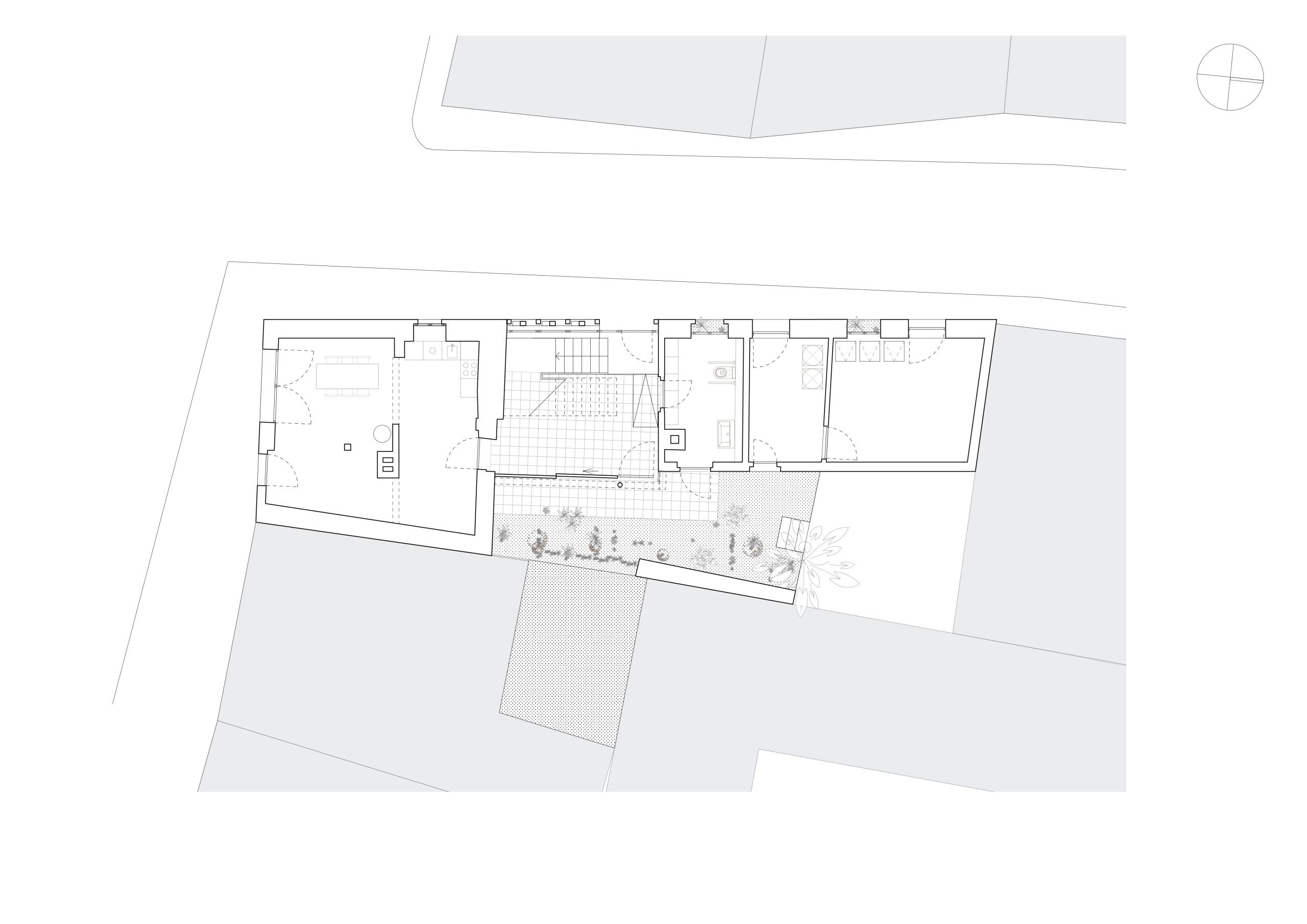
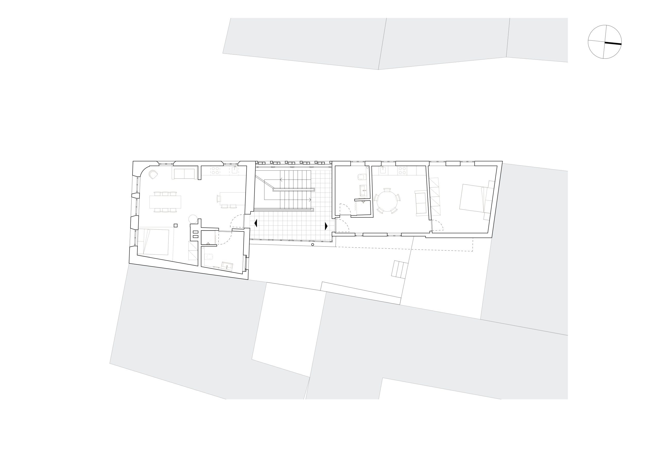
The 500 year old building has been remodeled for his lifetime. We want to develop further after a strng reshape by GDR to bring the house back to life. The project is part of a larger urban accupuncture strategy to vivid the city center of Altenburg. Main focus lies on using tradtional materials as clay and wood.
Program:
Hospitality
Project status:
Ongoing
Surface:
318 ㎡
Location:
Altenburg
Year:
2024
Design Team:
Ismet Bilgin