











Augsburger Straße, Berlin hide text
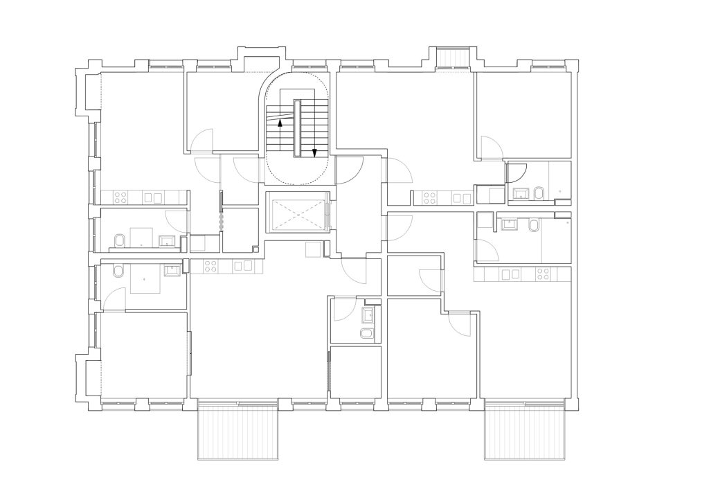
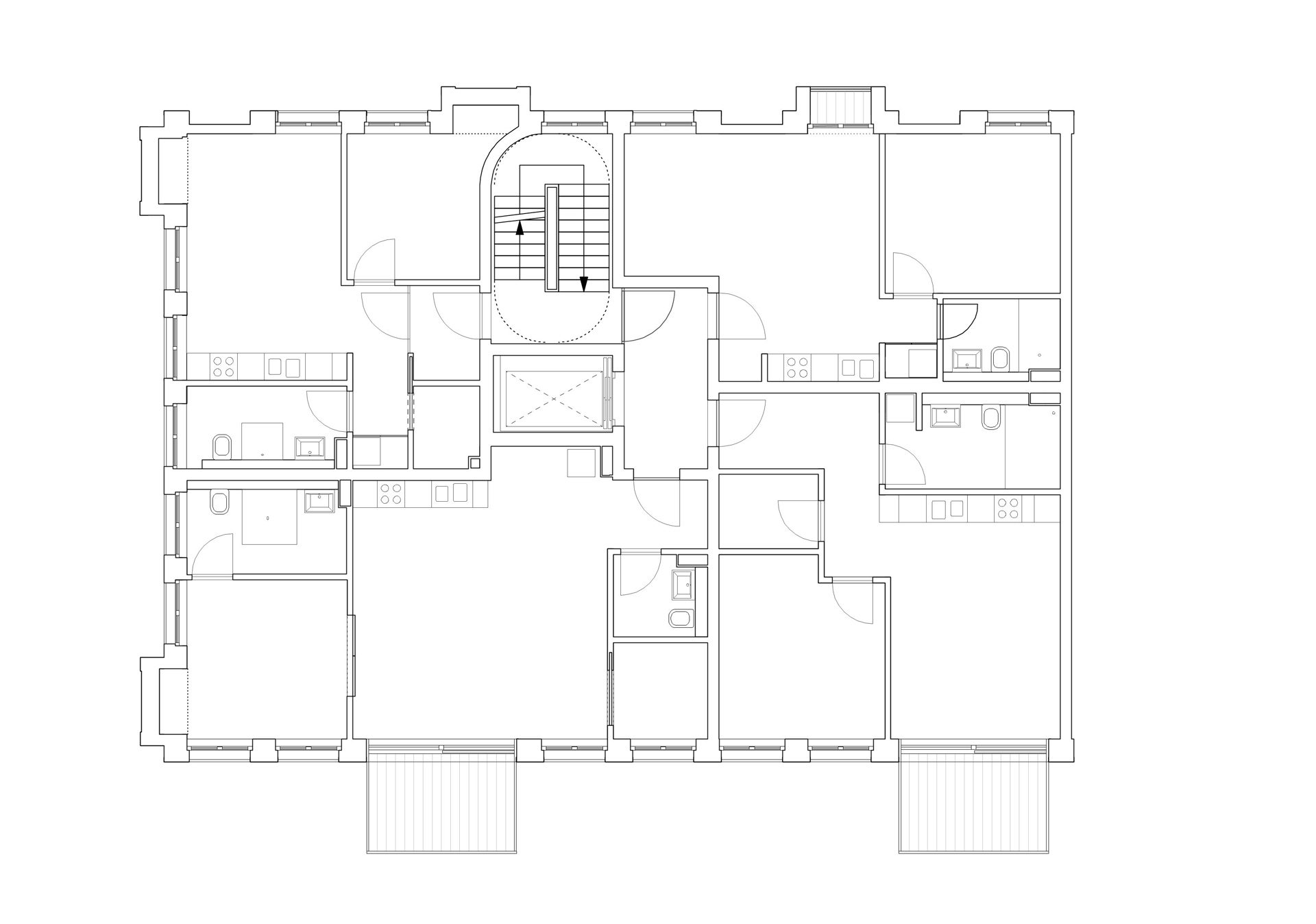
Close to Kurfürstendamm in Berlin’s Charlottenburg district, a new residential building is taking shape in the courtyard of an existing 1950s housing block. The design is based on a consistent facade grid with generous vertical openings. Individual sections that protrude 60 cm from the facade and closed spaces within the grid add contrast. Openings in the protruding elements are filled with vertical charred wood slats. Balustrades made entirely of glass complete the facade, underlining the building’s minimal architectural design. Alongside generous two metre-deep balconies on the southfacing wall, the building is topped off with a penthouse and rooftop terraces.
Program:
Residential
Project status:
Completed
Surface:
1.600 ㎡
Location:
Berlin
Year:
2014-2022
Design Team:
Julian Cassirer
Andreia Martins
Lia Janela
Monika Wilczek
Image Credits:
Francesca Ióvene