
















Carrer de la Diputació, Barcelona hide text
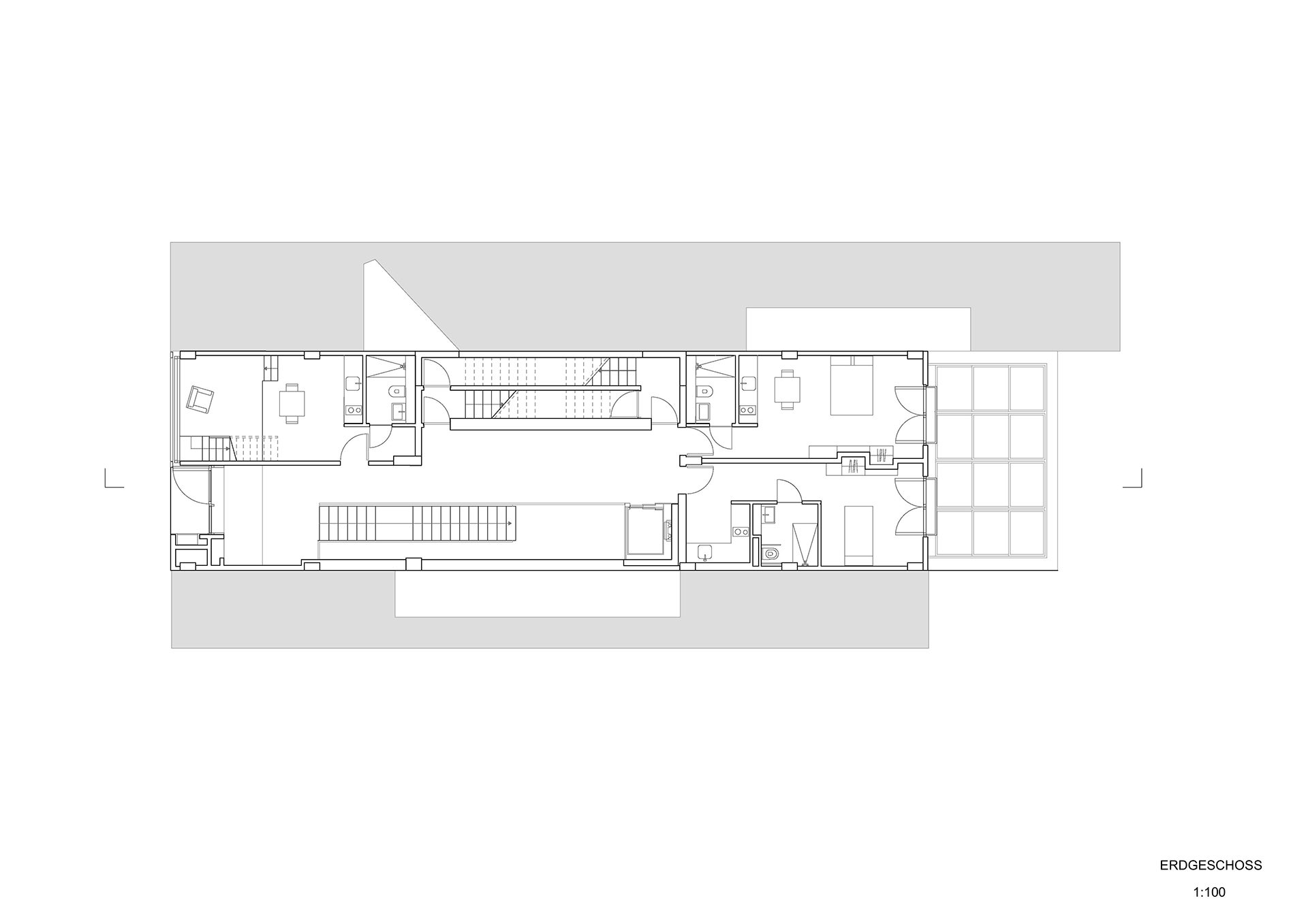
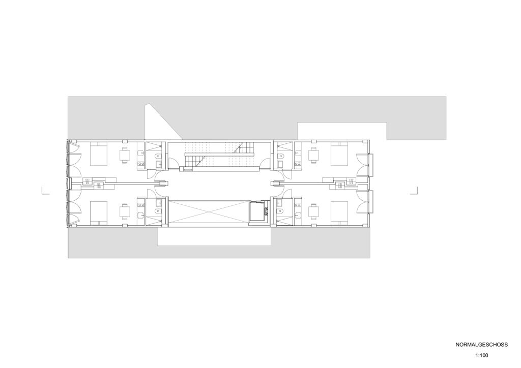
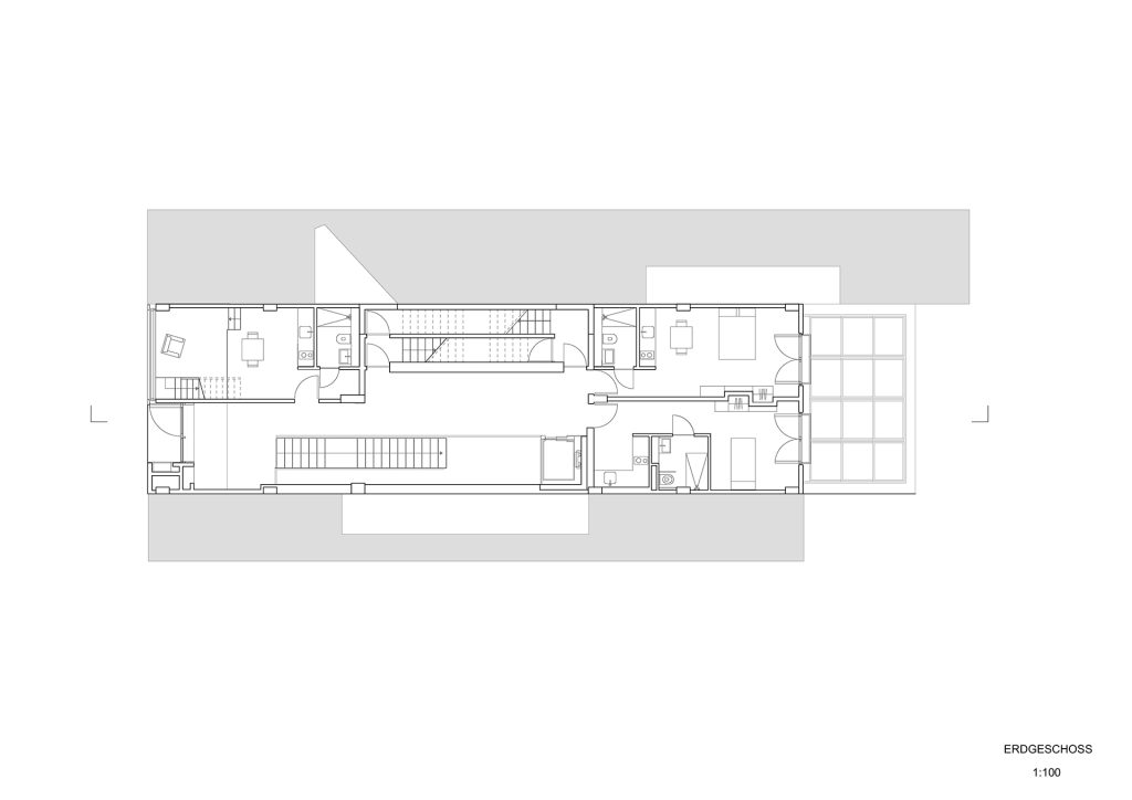
This narrow building replaces an old block at risk of collapse on Plaza de Toros in Barcelona’s Eixample district. The facade employs modern techniques to blend in with the playful architecture of its surroundings. It is characterised by the extremely vertical structure of its steel beams, which stand between the moving elements made from expanded metal. When closed, the foldable elements create a zigzag shape, which suggests the facade’s mobility. The semi-transparent shutters allow light from the compact living spaces behind to shine through at night. The microapartments are designed in accordance with our bento box principle and accessed via an open patio that is kept cool and shaded by vertical climbing plants Communal areas and a large kitchen with dining and workspaces are located in the basement. The building also features an extensive rooftop terrace with a pool and city panoramas.
Program:
Mixed use
Project status:
Completed
Surface:
1250 ㎡
Location:
Carrer de la Diputació, 288
Barcelona
Year:
2020
Design Team:
Sara Brysch
Andreia Martins
Tommaso Petrucci
Giordana Ghinzani
Marco Ripa di Meana
Collaboration:
Derryk Dettinger Arquitecte
Image Credits:
Filippo Poli