















Rocket Espresso, Truccazzano (MI) hide text
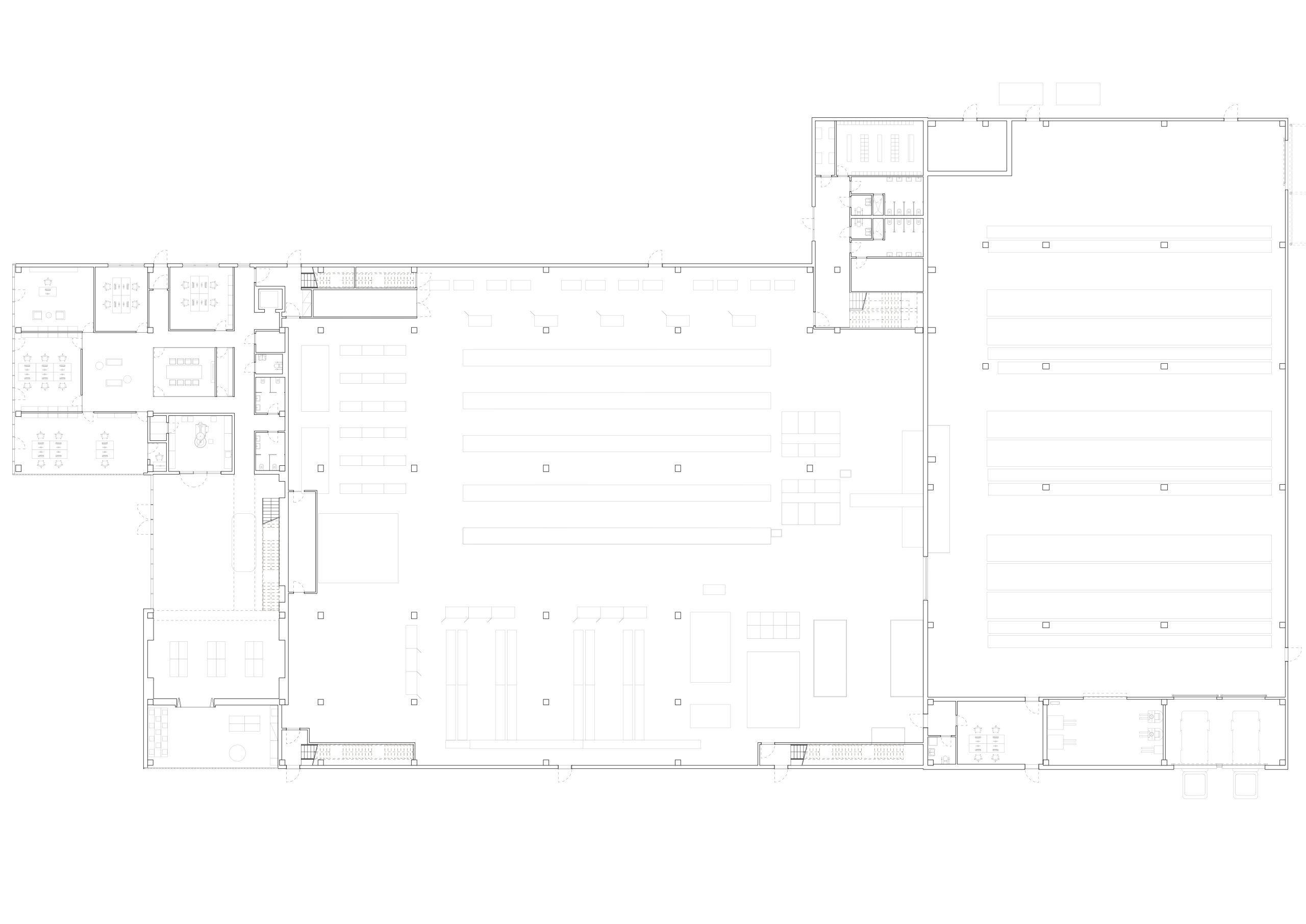
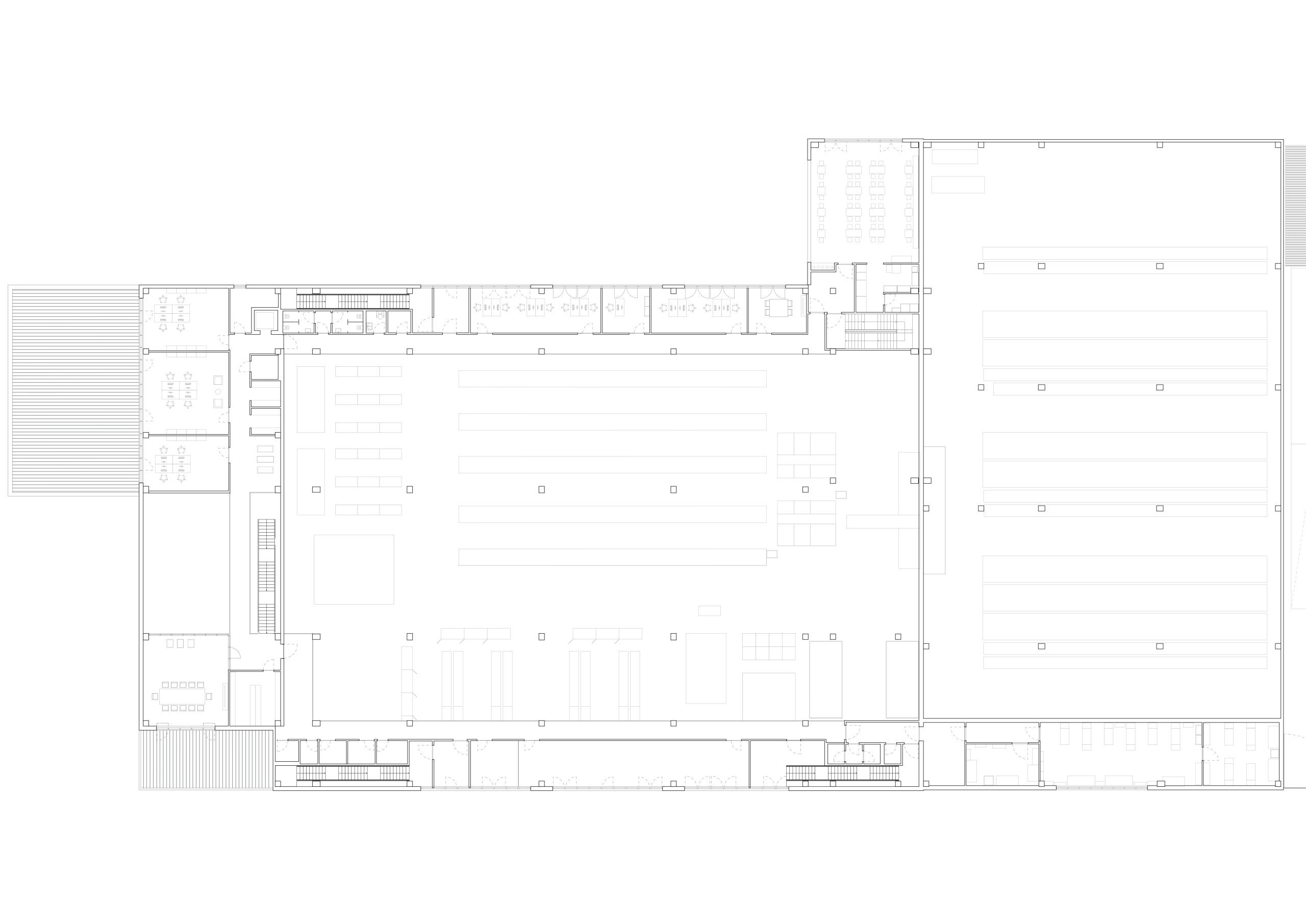
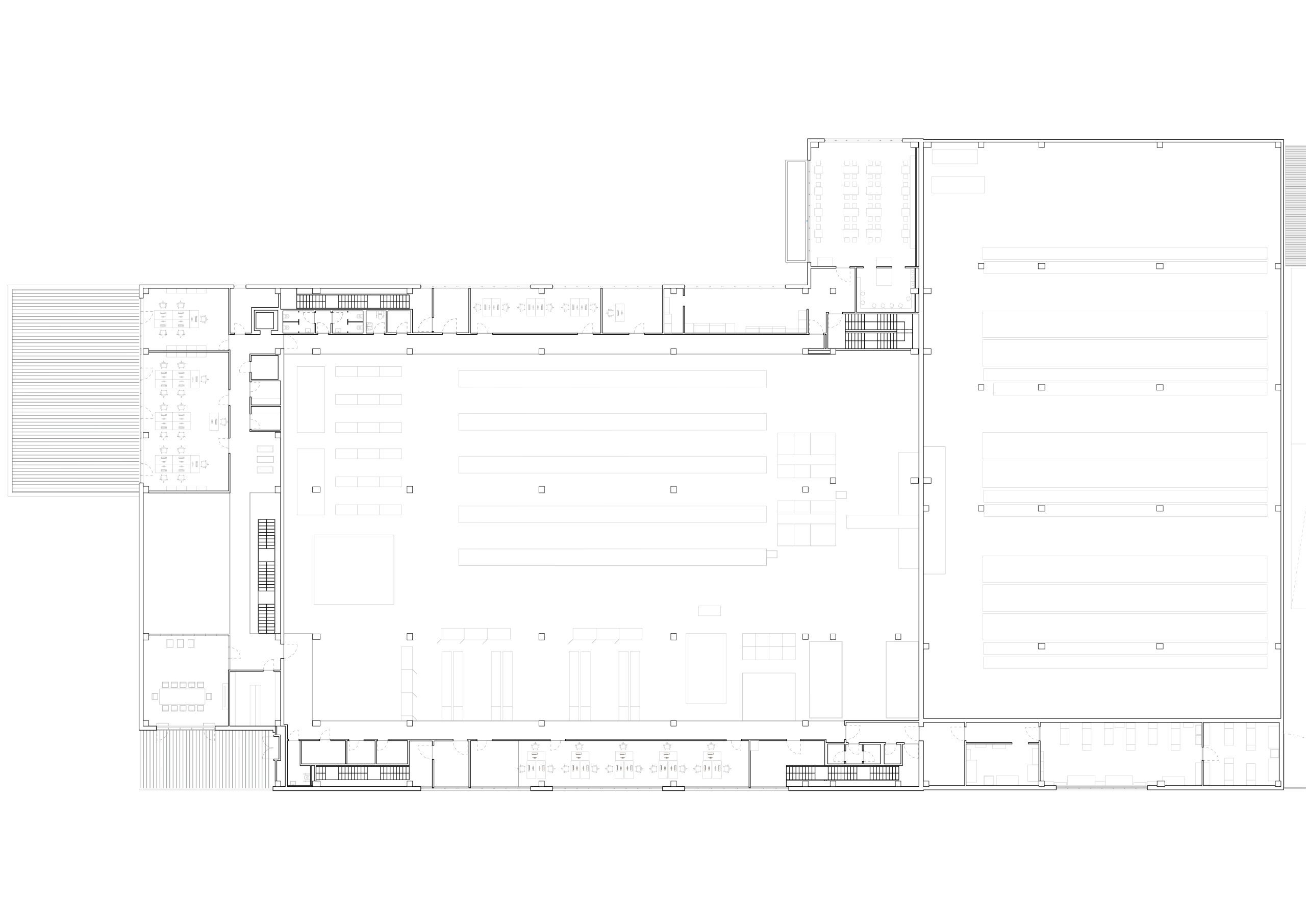
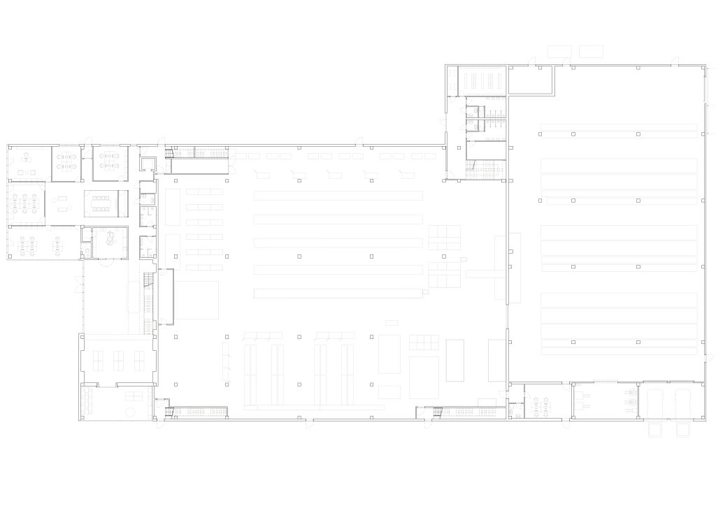
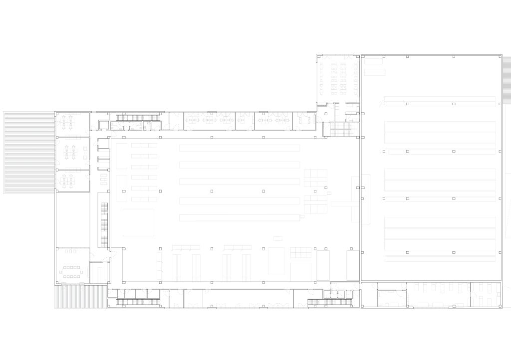
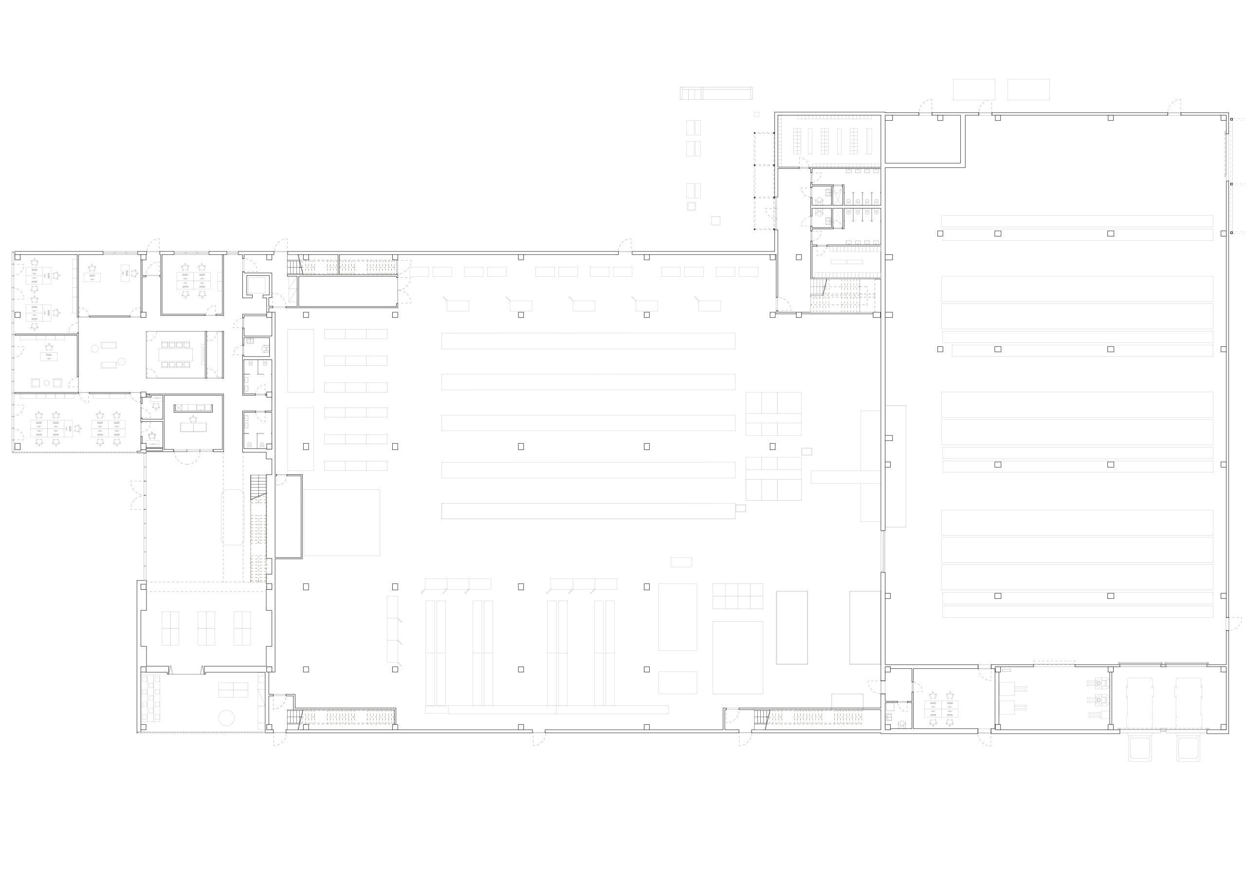
Located in the periphery of Milan, Italy, the extensive campus replaces three existing facilities, bringing together administrative production and commercial activities. The design builds on the notions of sustainability, transparency and community. Two connected main buildings are spread across 6.800m2. The first building encompasses the logistics, production and storage facility while the second building, connected by a bridge, is thought as an open office building. Environmentally conscious, the structure is made from existing and repurposed concrete combined with corrugated metal panels, a curtain wall and a green roof. Despite the industrial zoning the project aims to provide a maximum amount of green surface due to the direct proximity to the preserved area of Park North Adda River.
Program:
Industrial
Project status:
Ongoing
Surface:
7800 ㎡
Location:
Via A. Grandi 1 Zona Industriale
Truccazzano (MI)
Year:
2021
Design Team:
Maria Feller
Antonio Seghini
Cansu Caner
Mehrdad Jabbari Basir
Ismet Bilgin
Client: