



























Sao Nicolau, Mindelo, Capo Verde hide text
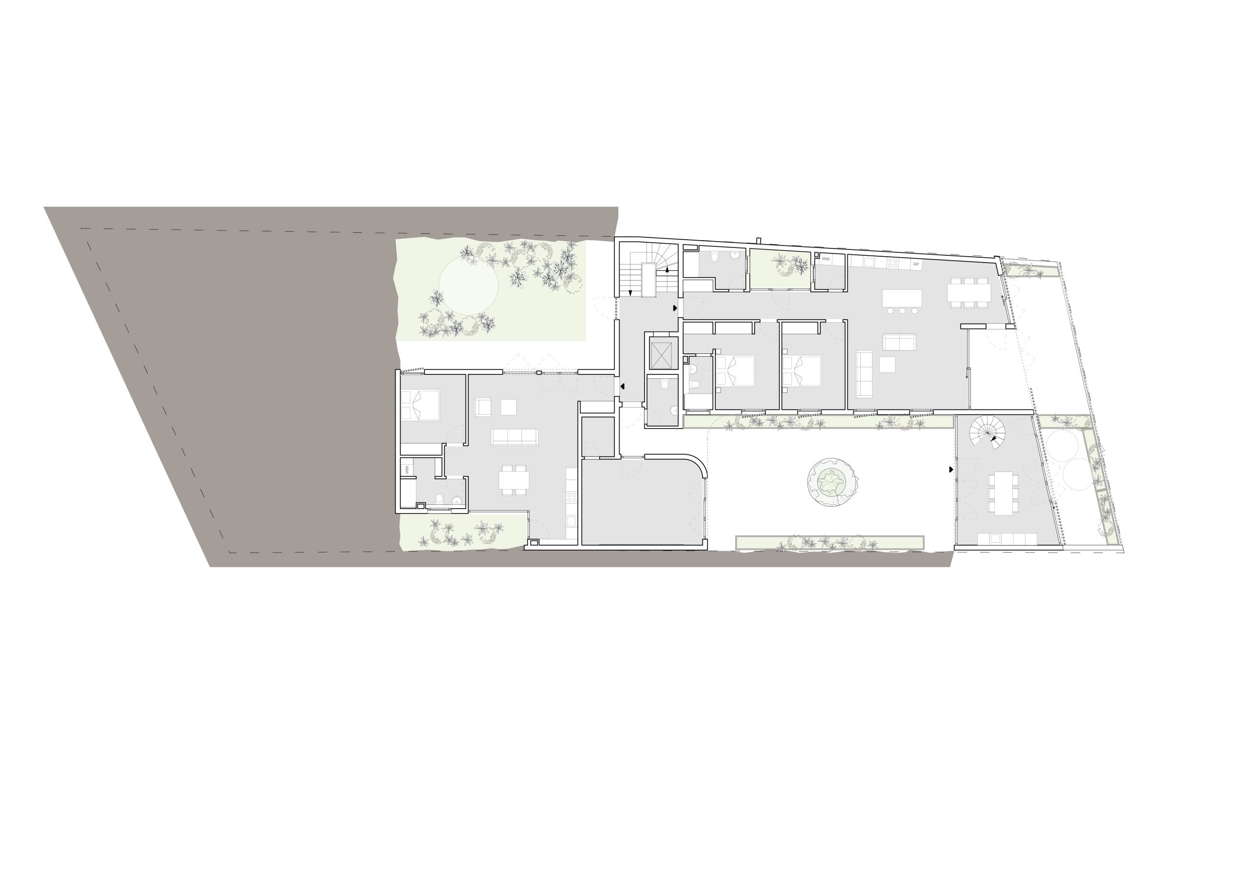
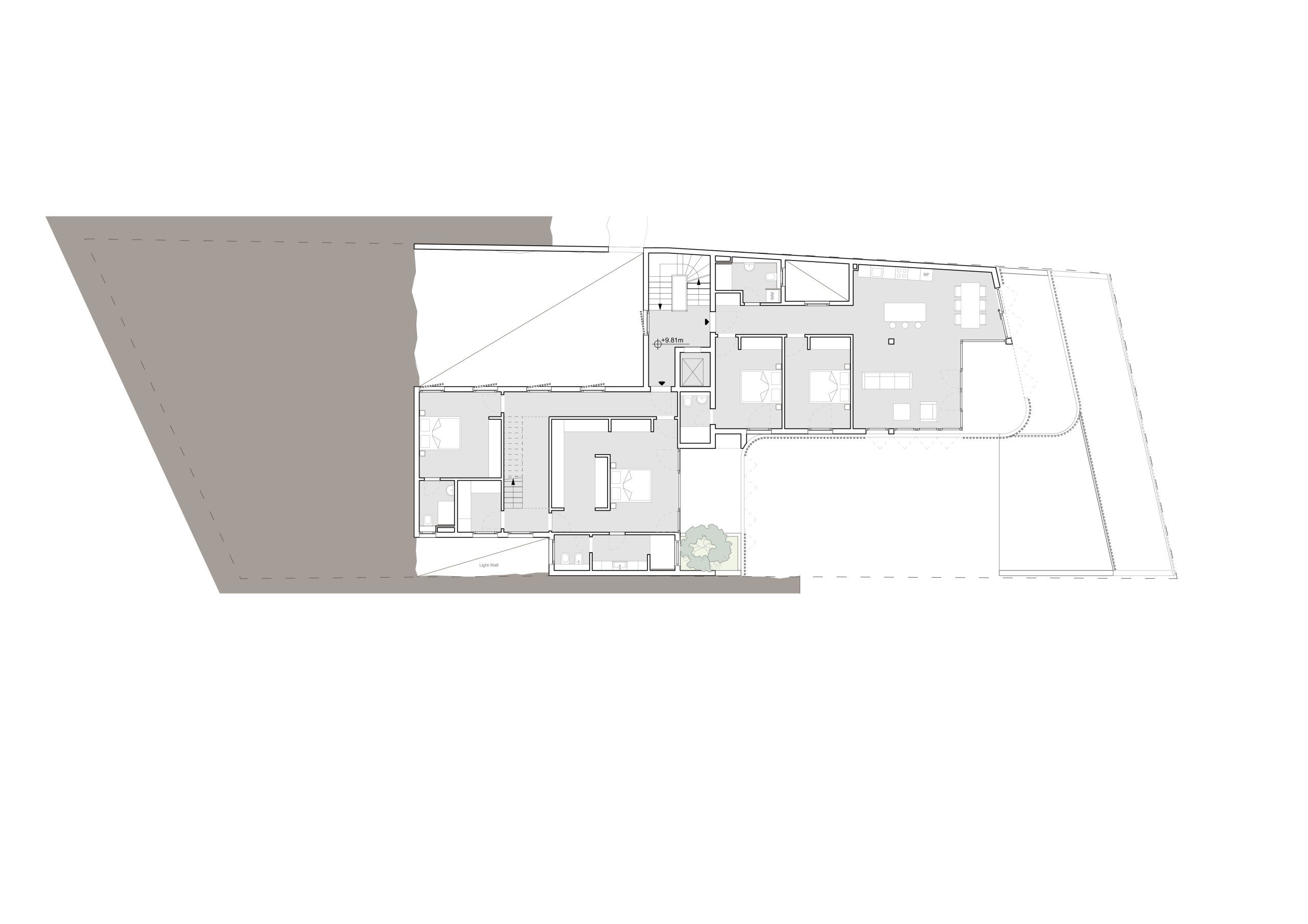
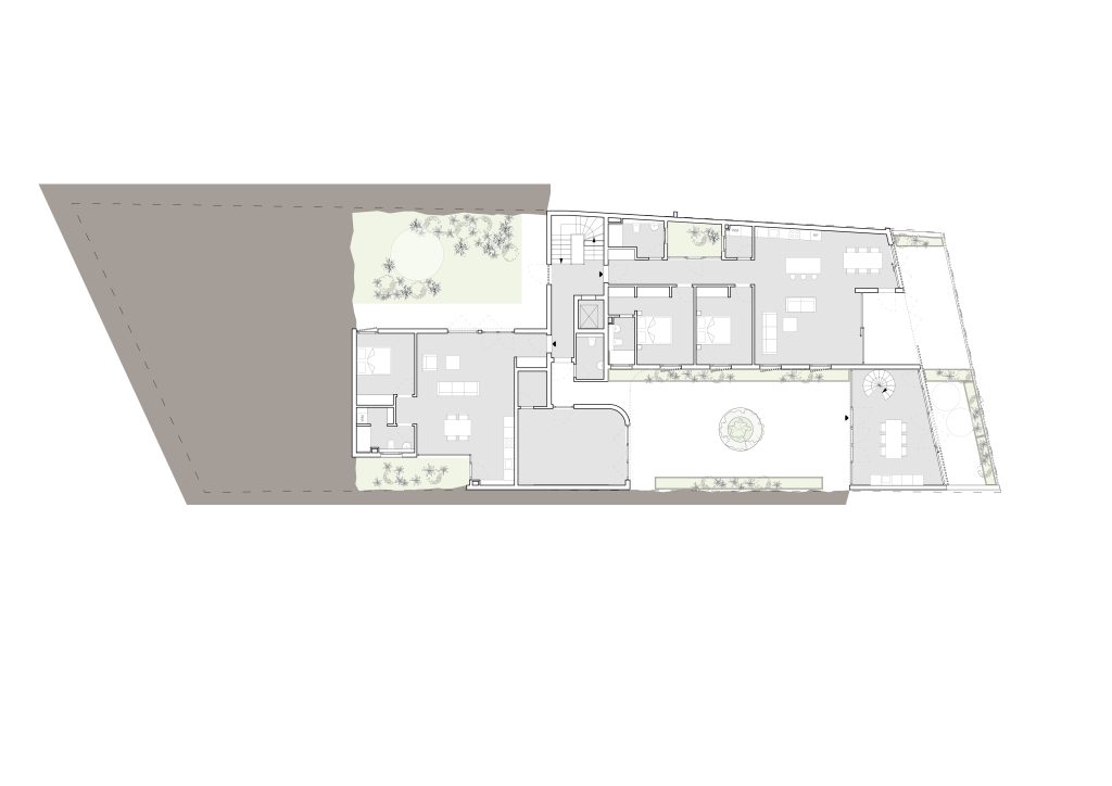
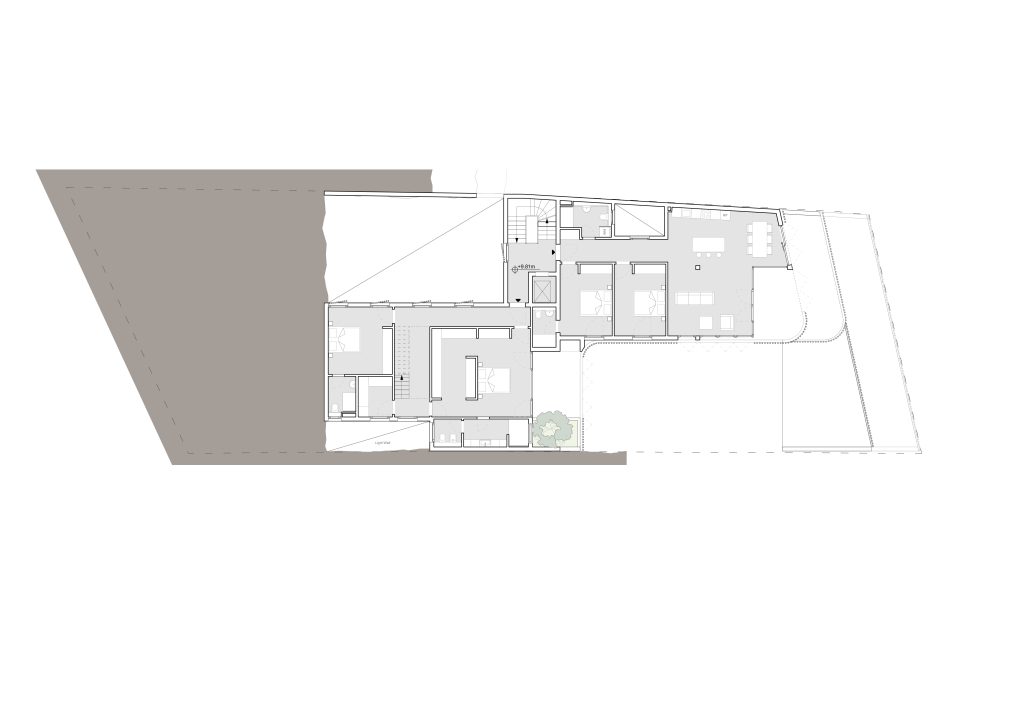
Situated on a hilly site aside the city cender of Mindelo, the residential project provides privacy for every unit and enables great views to the the bay and the city center. Due to intense sunlight the shading became a main design element to keep the house cool during the day. A public roof terrace and pool enable the tenants to enjoy the city. The house provides provides distict places all with a special quality.
Program:
Hospitality
Project status:
Ongoing
Surface:
1650 ㎡
Location:
Mindelo, Capo Verde
Design Team:
Ismet Bilgin